MAX Haus M 226
Ein modernes Familienhaus in Holzbauweise: Lichtdurchflutetes Design und individuelle Fassade
Der Traum vom Eigenheim mit dem MAX Haus M 226
Der Entwurf des Architekturbüros Kaltenbach-Ganter in Bernau ist ein Haus für die moderne Familie des 21. Jahrhunderts. Hiermit ist der Traum vom Eigenheim wahr geworden. Im Grundriss deutlich rechtwinklig, verfügt das Gebäude über reichlich bemessene Glaspartien, die überall Helligkeit und Transparenz schaffen. Flankiert von schlanken, tragenden Säulen, und abwechslungsreich im Mix der Materialien: So wirkt die Fassade – trotz scheinbar „streng“ geometrischer Strukturen – ganz individuell und unbeschwert.
Büro Kaltenbach-Ganter
2012
226 Quadratmeter
Satteldach
Einfamilienhaus in Tafelbauweise
Wandlitz
Zwei Stockwerke
Besonderheiten
Ein wahrer Hingucker ist die Kombination aus Putz und Holzelementen, die bei der Fassade verwendet wurden.
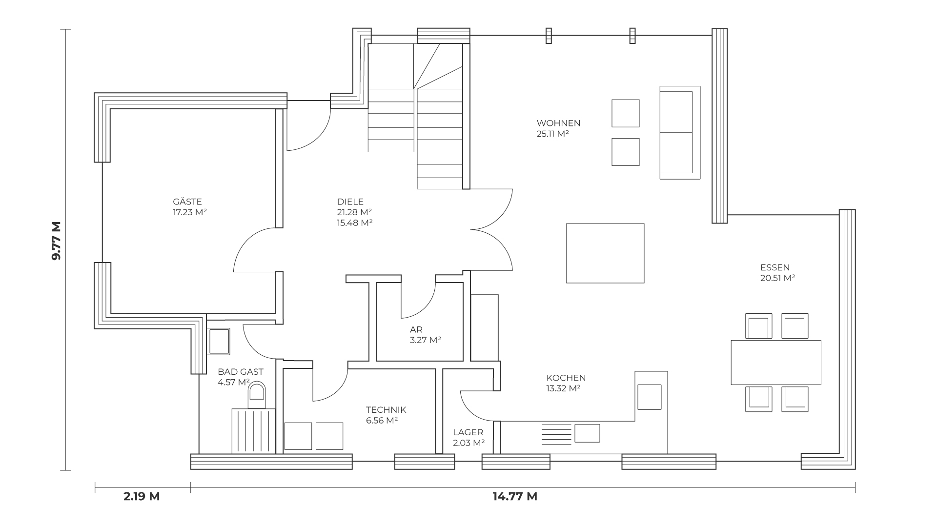
Eine Leichtigkeit, die den Besucher auch in den Innenräumen empfängt. Durchgängig viel Freiraum bieten Küche, Ess- und Wohnbereich: Sie wurden als großzügige Einheit gestaltet, in deren Mittelpunkt der Kamin für Gemütlichkeit sorgt. Das gegenüber liegende Gästezimmer mit eigenem Bad ermöglicht Privatheit wie Familienanschluss. Sein Kubus aus warmem, dunklem Holz öffnet sich zur Natur und fungiert als Terrasse. Im Obergeschoss finden wir ein großes Elternschlafzimmer mit geräumiger Ankleide, das private Elternbad und drei Kinder- oder Gästezimmer mit separatem Duschbad.
Haustechnik
Eine Luft-Wasser-Wärmepumpe sorgt hier für nachhaltige und effiziente Wärme. Durch diese Technologie können Heizkosten gesenkt werden, die Betriebssicherheit ist hoch und die Umwelt wird geschützt.
Jetzt Beratung einholen und schlüsselfertiges Holzhaus bauen
Einer der innersten Wünsche des Menschen ist es, ein Zuhause zu finden. Ein Ort, wo Erinnerungen entstehen. Dieses Traumhaus zu bauen, beinhaltet viele Schritte. Wir fokussieren uns auf Ihre Bedürfnisse und Anforderungen. Möchten Sie mehr über unsere Häuser in Holzbauweise erfahren? Füllen Sie das Kontaktformular aus und unser Experte Herr Herzog kontaktieren Sie umgehend. Wir freuen uns darauf, mit Ihnen Ihr individuelles MAX Haus zu planen und zu bauen!
Ihre Kontaktdaten
Weitere MAX Häuser
Sie interessieren sich für den Holzbau und wollen mehr erfahren? Wir erweitern Ihr Wissen und klären Sie über viele spannende Details des Holzbaus auf. Erfahren Sie mehr in unserem Ratgeber zu unterschiedlichen Themen rund um den Holzbau.
