MAX Haus C 204
Viel Platz für die ganze Familie in dem einzigartigen Holzhaus MAX Haus C 204
Das MAX Haus C 204 überzeugt mit seiner warmen Holzfassade und der cleveren Raumaufteilung über drei Etagen
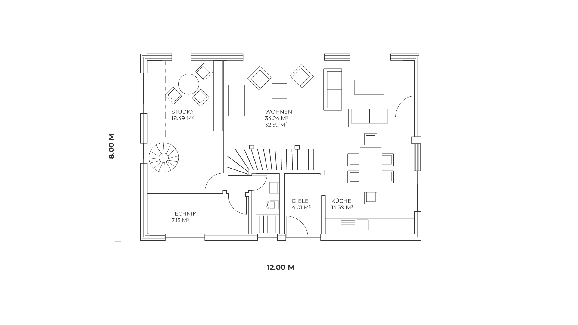
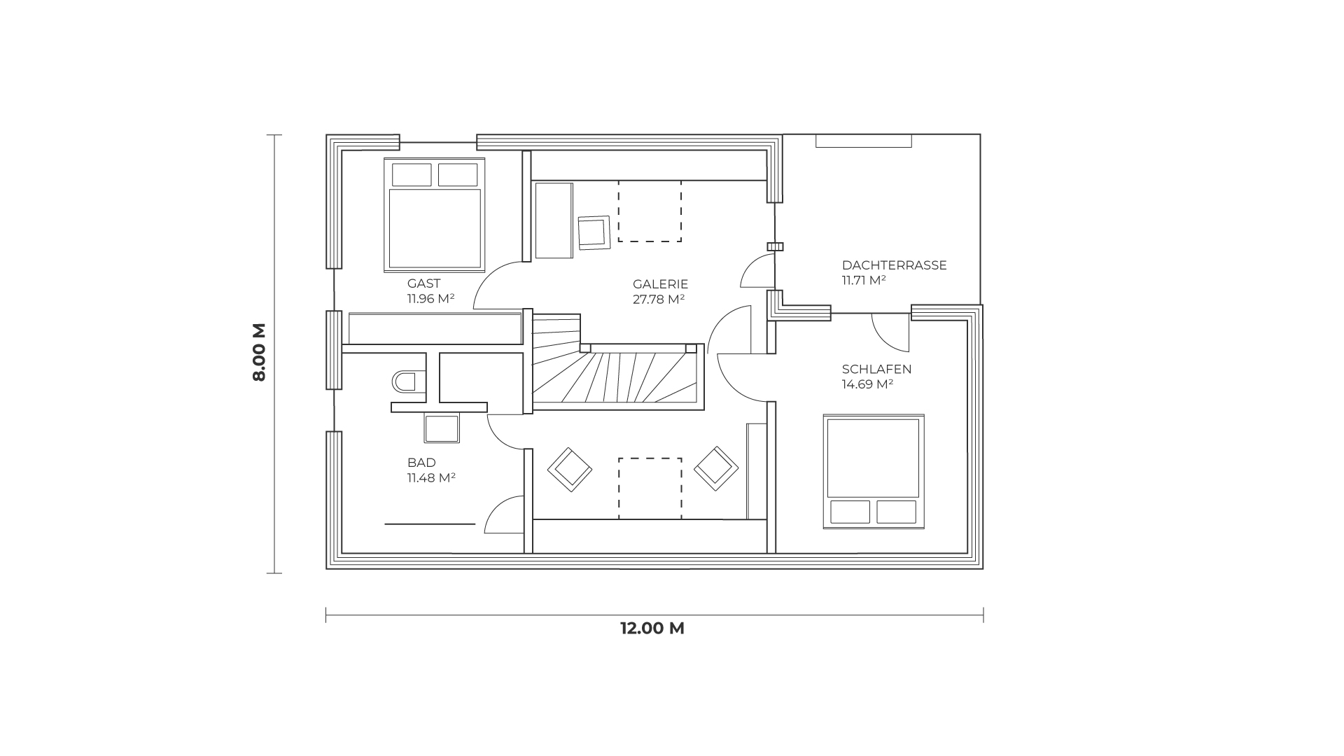
Das MAX Haus C 204 besticht mit einer beeindruckenden Holzfassade, die natürliche Wärme und Gemütlichkeit ausstrahlt. Mit seinen drei Geschossen bietet das Holzhaus viel Platz für jedes Familienmitglied. Das Erdgeschoss beherbergt einen offenen Wohn- und Essbereich, der zum gemeinsamen Beisammensein einlädt. Von dort aus gelangt man auf die Terrasse und in den Garten. Kluge Raumteilungen und gemütliche Ecken bieten der fünfköpfigen Familie Komfort und Rückzugsorte für jedes Familienmitglied.
MAX-Haus GmbH
2019
204 Quadratmeter
Satteldach
Einfamilienhaus in Tafelbauweise
Potsdam
Drei Stockwerke
Besonderheiten
In diesem MAX Haus nimmt die Anzahl der Besonderheiten kein Ende. Angefangen bei einer Holzfassade aus sibirischer Lärche, die über drei Etagen geht. Sie vergraut über die Zeit und bildet eine natürlich silberfarbene Patina. Auch bei den Innenräumen wurde möglichst viel Sichtholz eingesetzt. Wände und Decken wurden aus CLT, also Brettsperrholz hergestellt und naturbelassen. Dadurch wirken der offene Wohnbereich und die Schlafzimmer besonders gemütlich und ein spürbar angenehmes Raumklima entsteht. Weiter geht es mit einem separaten Bereich, der Arbeitsräume von Wohnräumen trennt. Er ist sowohl durch das Wohnzimmer als auch durch eine separate Hauseingangstür erreichbar. Ein spezielles Extra ist die Kletterwand an den CLT-Wänden. Darauf folgt ein vollausgestattetes Treppenauge aus Sichtholz über alle drei Etagen. Und natürlich darf eine kleine Dachterrasse im dritten Stockwerk nicht fehlen. Hier kann man ungestört die Sonne genießen und den Trubel des Alltags hinter sich lassen.
Haustechnik
Wie in fast allen MAX Häusern wurde im MAX Haus C 204 eine Wärmepumpe verbaut, die nicht nur Wärme erzeugt, sondern auch in den Sommermonaten für Kühlung sorgt. Die Wärmepumpe nutzt die Umgebungsluft, um Wärme zu gewinnen. Im Vergleich zu herkömmlichen Heizsystemen kann sie deutlich mehr Wärmeenergie erzeugen als sie elektrische Energie verbraucht. Dadurch ermöglicht sie eine effiziente Nutzung vorhandener Energiequellen und trägt zur Reduzierung des Energieverbrauchs und der CO2-Emissionen bei.
Jetzt Beratung einholen und schlüsselfertiges Holzhaus bauen
Einer der innersten Wünsche des Menschen ist es, ein Zuhause zu finden. Ein Ort, wo Erinnerungen entstehen. Dieses Traumhaus zu bauen, beinhaltet viele Schritte. Wir fokussieren uns auf Ihre Bedürfnisse und Anforderungen. Möchten Sie mehr über unsere Häuser in Holzbauweise erfahren? Füllen Sie das Kontaktformular aus und unser Experte Herr Herzog kontaktieren Sie umgehend. Wir freuen uns darauf, mit Ihnen Ihr individuelles MAX Haus zu planen und zu bauen!
Ihre Kontaktdaten
Weitere MAX Häuser
Sie interessieren sich für den Holzbau und wollen mehr erfahren? Wir erweitern Ihr Wissen und klären Sie über viele spannende Details des Holzbaus auf. Erfahren Sie mehr in unserem Ratgeber zu unterschiedlichen Themen rund um den Holzbau.
