MAX Haus S 130
Perfektes Raumwunder für Familien
Familienfreundlich und energieeffizient
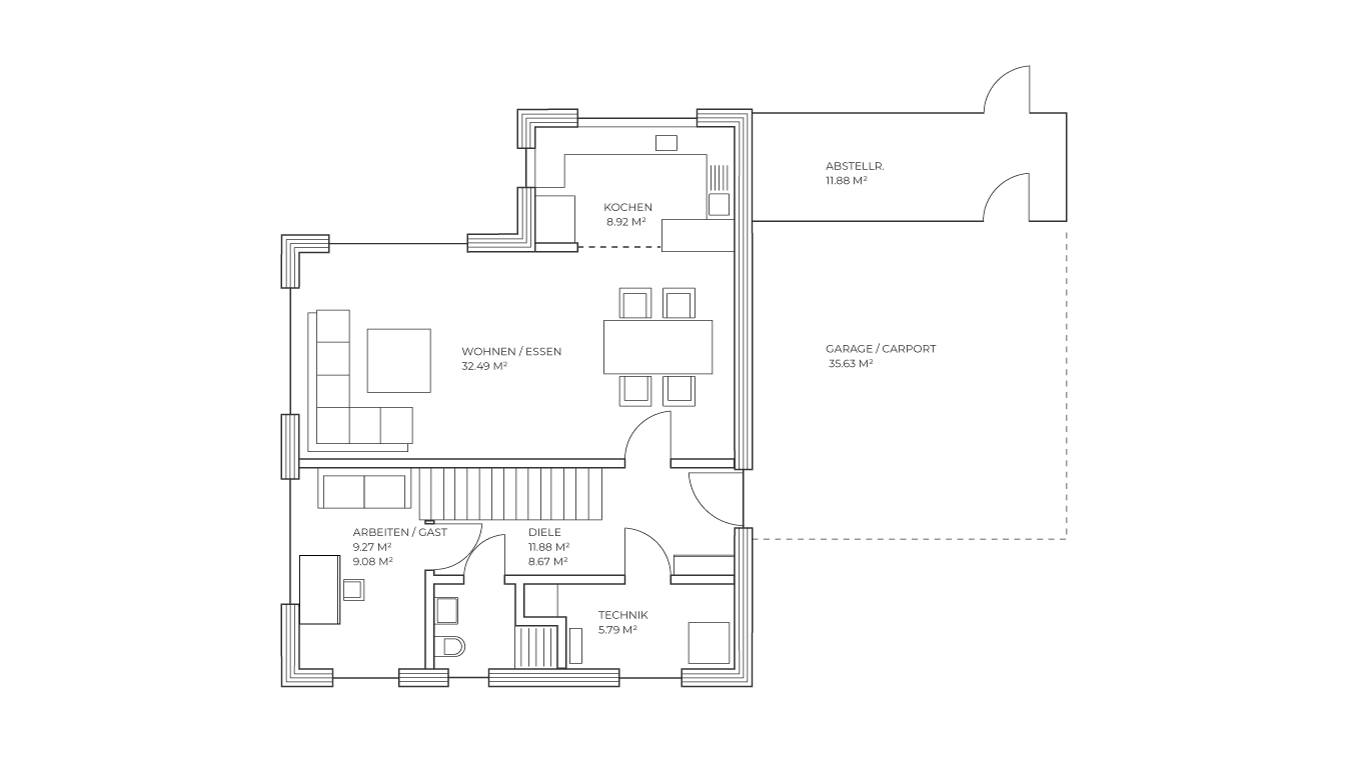
Das 130 m² große Holzhaus in Brandenburg vereint moderne Architektur mit natürlichem Charme. Hochwertige Materialien wie Eichenparkett, eine Fichtenhaustür und eine stilvolle Putz-Holzfassade schaffen Wohnkomfort. Dank Carport mit Abstellraum, Wärmepumpe und Photovoltaikanlage bietet es Familien nachhaltigen, funktionalen und großzügigen Wohnraum.
Antje Baumgart über MAX Haus
2019
130 Quadratmeter
Satteldach
Landhaus
Brandenburg
Zwei Stockwerke
Besonderheiten
Es entstand ein modernes Holzhaus mit einer Wohnfläche von 130 Quadratmetern, das traditionelle Bauweise mit zeitgemäßer Architektur verbindet. Die Fassade kombiniert verputzte Flächen mit Holz, wodurch sich das Gebäude harmonisch in die Landschaft einfügt und zugleich eine warme, einladende Ausstrahlung erhält.
Im Inneren setzt sich die hochwertige Materialwahl fort: Eichenparkett sorgt in allen Wohnräumen für eine elegante, langlebige und gleichzeitig gemütliche Atmosphäre. Der Eingangsbereich wird durch eine Haustür aus Fichte betont, die dem Haus einen handwerklich-authentischen Charakter verleiht.
Das Dach ist klassisch mit Ziegeln gedeckt und fügt sich dadurch stimmig in die regionale Bauweise ein. Ergänzt wird das Ensemble durch einen direkt angeschlossenen Carport mit praktischem Abstellraum, der zusätzlichen Stauraum für Gartengeräte, Fahrräder oder saisonale Utensilien bietet.
So vereint das Haus Natürlichkeit, Funktionalität und Wohnkomfort auf gelungene Weise – ein Beispiel für zeitgemäßes Bauen in Brandenburg mit starkem Bezug zu regionalen Materialien und nachhaltiger Holzbauweise.
Haustechnik
Auch die Haustechnik überzeugt: Eine moderne Wärmepumpe sorgt effizient für Heizung und Warmwasser, während die auf dem Dach installierte Photovoltaikanlage umweltfreundlich Strom erzeugt und damit die Energiekosten deutlich reduziert. So wird das Haus nicht nur architektonisch, sondern auch technisch zukunftsorientiert und nachhaltig ausgestattet.
Jetzt Beratung einholen und schlüsselfertiges Holzhaus bauen
Einer der innersten Wünsche des Menschen ist es, ein Zuhause zu finden. Ein Ort, wo Erinnerungen entstehen. Dieses Traumhaus zu bauen, beinhaltet viele Schritte. Wir fokussieren uns auf Ihre Bedürfnisse und Anforderungen. Möchten Sie mehr über unsere Häuser in Holzbauweise erfahren? Füllen Sie das Kontaktformular aus und unser Experte Herr Herzog kontaktieren Sie umgehend. Wir freuen uns darauf, mit Ihnen Ihr individuelles MAX Haus zu planen und zu bauen!
Ihre Kontaktdaten
Weitere MAX Häuser
Sie interessieren sich für den Holzbau und wollen mehr erfahren? Wir erweitern Ihr Wissen und klären Sie über viele spannende Details des Holzbaus auf. Erfahren Sie mehr in unserem Ratgeber zu unterschiedlichen Themen rund um den Holzbau.
