MAX Haus G 155
Tradition trifft Moderne im Schwedenhaus
Nachhaltig wohnen im skandinavischen Stil
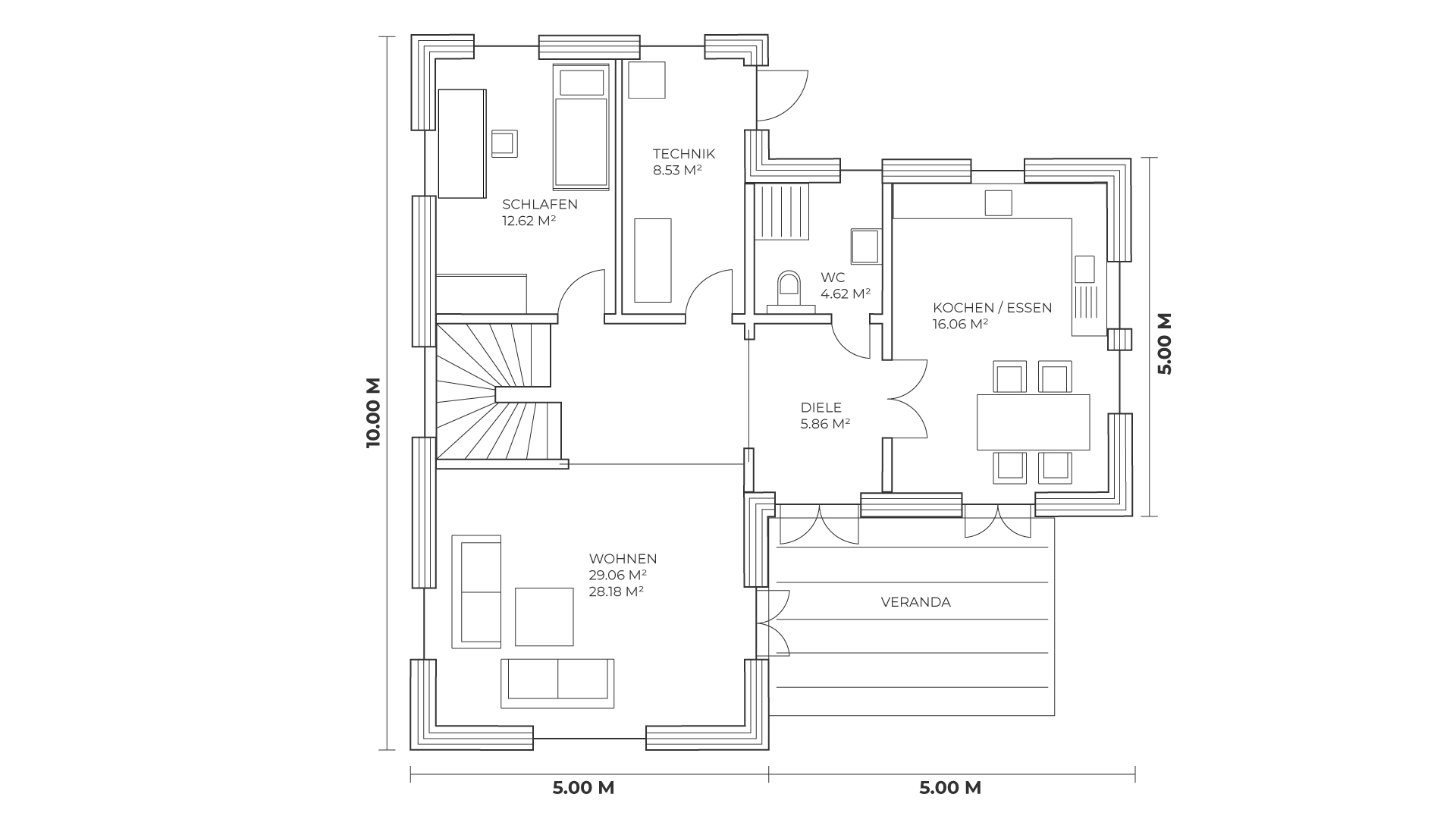
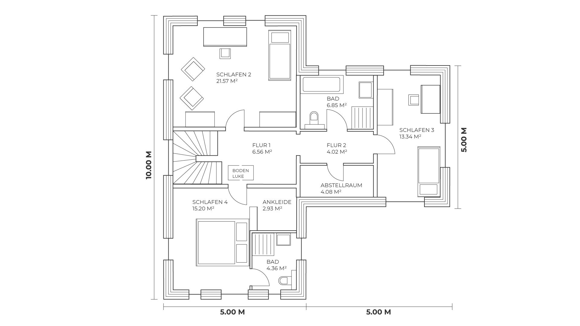
Das 155 m² große Schwedenhaus in Brandenburg begeistert mit roter Holzfassade, weißen Dekorbetten, Sprossenfenstern und hellem Parkett. Neben traditionellem Charme überzeugt es mit moderner Technik: Wärmepumpe, Solaranlage und Thermobodenplatte mit Fußbodenheizung sorgen für nachhaltigen Wohnkomfort.
Holger Brandt
2011
155 Quadratmeter
Satteldach
Schwedenhaus
Brandenburg
Zwei Stockwerke
Besonderheiten
In Brandenburg entstand ein charmantes Holzhaus mit 155 Quadratmetern Wohnfläche, das ganz im Stil eines klassischen Schwedenhauses errichtet wurde. Die Fassade erstrahlt im typischen Schwedenrot und wird durch weiße Dekorbetten akzentuiert, wodurch das Gebäude seinen unverwechselbaren, freundlichen Charakter erhält.
Das Dach ist mit robusten Dachsteinen gedeckt und rundet das traditionelle Erscheinungsbild harmonisch ab. Besonders einladend wirkt der Eingangsbereich mit einer Holztür samt Oberlicht, die den Eingangsbereich hell und freundlich gestaltet. Die weißen Holzfenster mit feinen Sprossen unterstreichen den skandinavischen Baustil und sorgen gleichzeitig für viel Licht im Inneren.
Im Hausinneren setzt sich die warme und natürliche Atmosphäre fort: Hochwertiges Parkett verleiht den Räumen Eleganz und Wohnkomfort. Mit seiner gelungenen Kombination aus Funktionalität, Gemütlichkeit und charakterstarkem Design bietet dieses Schwedenhaus großzügigen Platz und eine einzigartige Wohnqualität für Familien.
Haustechnik
Auch in puncto Technik ist das Haus bestens ausgestattet: Eine moderne Wärmepumpe in Kombination mit einer Solaranlage gewährleistet energieeffizientes Heizen und die nachhaltige Stromversorgung. Die Thermobodenplatte mit integrierter Fußbodenheizung sorgt dabei für ein behagliches Raumklima und gleichmäßige Wärme in allen Wohnbereichen.
Jetzt Beratung einholen und schlüsselfertiges Holzhaus bauen
Einer der innersten Wünsche des Menschen ist es, ein Zuhause zu finden. Ein Ort, wo Erinnerungen entstehen. Dieses Traumhaus zu bauen, beinhaltet viele Schritte. Wir fokussieren uns auf Ihre Bedürfnisse und Anforderungen. Möchten Sie mehr über unsere Häuser in Holzbauweise erfahren? Füllen Sie das Kontaktformular aus und unser Experte Herr Herzog kontaktieren Sie umgehend. Wir freuen uns darauf, mit Ihnen Ihr individuelles MAX Haus zu planen und zu bauen!
Ihre Kontaktdaten
Weitere MAX Häuser
Sie interessieren sich für den Holzbau und wollen mehr erfahren? Wir erweitern Ihr Wissen und klären Sie über viele spannende Details des Holzbaus auf. Erfahren Sie mehr in unserem Ratgeber zu unterschiedlichen Themen rund um den Holzbau.
