MAX Haus D 280

Ein Haus, das Natürlichkeit, Wohnkomfort und zeitgemäße Technik harmonisch vereint.

Eine Wohlfühloase – innen wie außen.

Einladend und charmant präsentiert sich dieses Haus schon von außen: Die umlaufende, überdachte Holzveranda, elegante Schiebefenster mit Sprossen, großzügige Terrassenschiebetüren und liebevoll gestaltete Gauben lassen erahnen, welch behagliches Ambiente sich im Inneren verbirgt.

Im Hausinneren sorgen offene Übergänge zwischen Küche, Wohn-, Ess- und Eingangsbereich für ein großzügiges und luftiges Raumgefühl. Warme Holzelemente verleihen den Räumen eine natürliche Geborgenheit – sei es durch stilvoll integrierte Sichtbalken oder die zentral platzierte weiße Vollholztreppe, die als architektonisches Highlight dient.
Auch technisch überzeugt das Haus: Eine moderne Wärmepumpe sorgt für nachhaltige Wärme, während die dreifach verglasten Fenster mit zusätzlichem Verbundsicherheitsglas für Sicherheit und Energieeffizienz stehen.

Grundriss

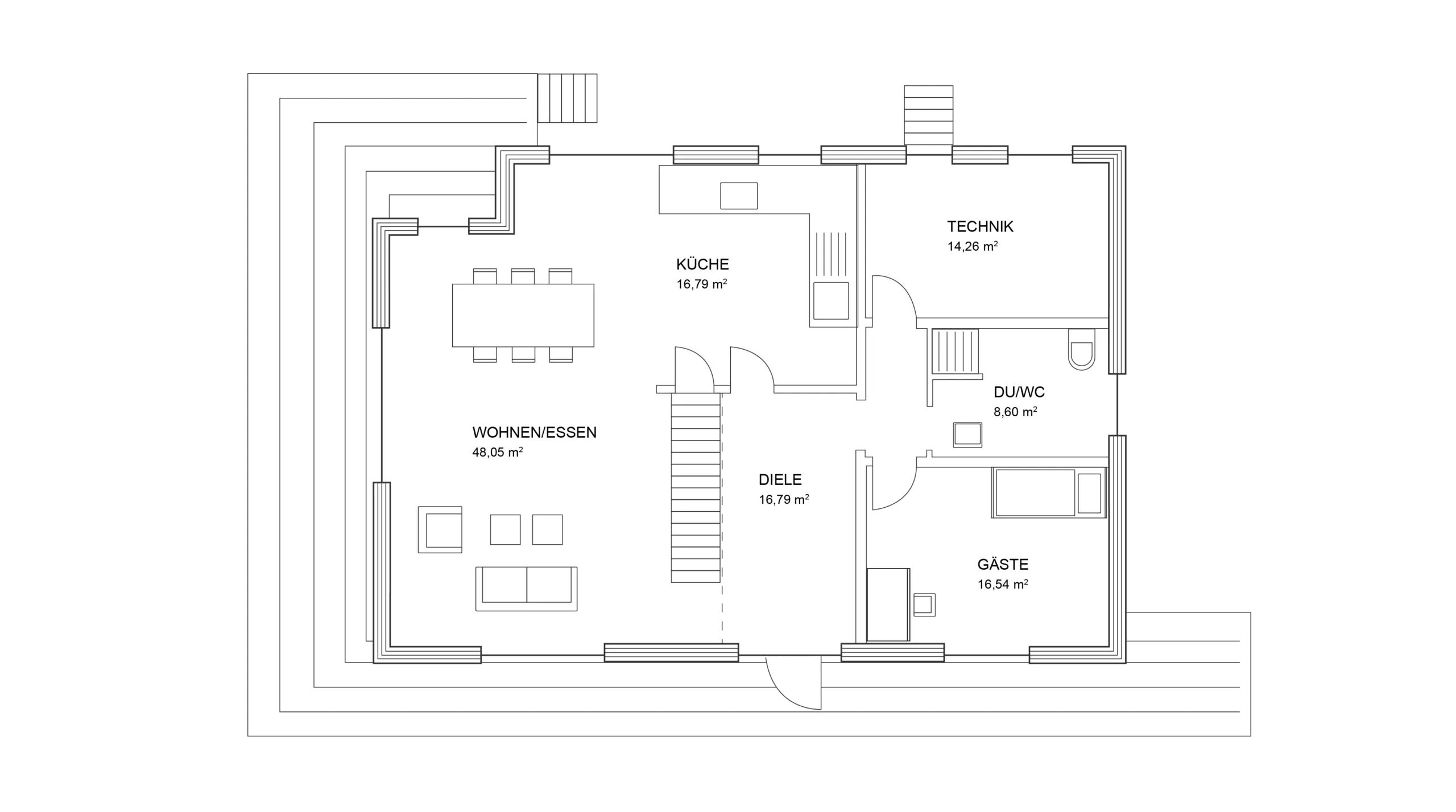
Geschoss 1

Geschoss 2

Besonderheiten

Die natürliche Holzfassade verleiht dem Haus einen warmen, zeitlosen Charakter und fügt sich harmonisch in jede Umgebung ein. Großzügige Holzschiebefenster mit dreifacher Verglasung lassen viel Licht ins Innere und sorgen zugleich für exzellenten Wärme- und Schallschutz. Im Inneren öffnet sich das Raumgefühl in beeindruckender Weise: Ein offenes Loft mit sichtbaren Holzbalken und ein Luftraum bis zum rund sechs Meter hohen First schaffen ein einzigartiges Wohnambiente voller Weite, Leichtigkeit und architektonischer Klarheit.

Haustechnik

Auch in puncto Nachhaltigkeit und Energieeffizienz überzeugt das Haus auf ganzer Linie: Die Dämmung mit natürlicher Holzfaser sorgt für ein angenehmes Raumklima und trägt aktiv zum ökologischen Bauen bei. Eine moderne Luft-Wasser-Wärmepumpe sowie die kontrollierte Wohnraumlüftung mit Wärmerückgewinnung garantieren effiziente Heiztechnik und frische Luft – bei minimalem Energieverbrauch. Großzügige Terrassenschiebetüren eröffnen fließende Übergänge nach draußen, während das hochwertige Thermofundament eine solide, wärmegedämmte Basis schafft.

Wir freuen uns auf Ihre Kontaktaufnahme!

Weitere MAX Häuser

Sie interessieren sich für den Holzbau und wollen mehr erfahren? Wir erweitern Ihr Wissen und klären Sie über viele spannende Details des Holzbaus auf. Erfahren Sie mehr in unserem Ratgeber zu unterschiedlichen Themen rund um den Holzbau. 

MAX Haus K 103
MAX Haus G 103
MAX Haus S 177
MAX Haus M 140

Außenwand – Holzfassade vertikal

Außenwand der Holzfassade in vertikaler Ansicht